Managing Flammable and Explosive Atmospheres
Hazardous area classification is essential for any facility where flammable atmospheres or explosive atmospheres may occur due to the presence of gases, vapours, or dusts. A correct classification ensures that all equipment is selected, installed, and maintained in accordance with national and international standards significantly reducing the risk of fire, explosion, or equipment failure.
At Safety Solutions, we provide expert hazardous area zoning assessments and hazardous area classification training to help organisations protect people, assets, and operations while ensuring regulatory compliance.

The Problem – Risks of Inaccurate Hazardous Area Classification
When hazardous area classification is incorrect or incomplete, the consequences can be severe:
- Incorrect Equipment Selection – Using unsuitable equipment in hazardous zones can present additional ignition sources
- Explosion or Fire Hazards – Additional ignition sources can ignite flammable materials, leading to catastrophic incidents.
- Non-Compliance – Breaches applicable standards can result in costly fines, shutdowns, or reputational damage.
Our Comprehensive Hazardous Area Classification Process
We follow a methodical, standards-based approach to identify and mitigate risks.
- Identify Flammable Materials-We analyse your processes to identify all materials that could create a flammable atmosphere and evaluate ventilation conditions to determine risk levels.
- Classify Hazardous Areas-We assign the correct hazardous area zones in line with the appropriate standards.
- Prepare Detailed Reports-We produce a comprehensive report outlining classification methodology, hazards identified, and recommendations for safety measures.
- Schedule of Materials & Release Sources – We document all hazardous substances and potential release sources within your facility, aligned with the relevant hazardous area zone.
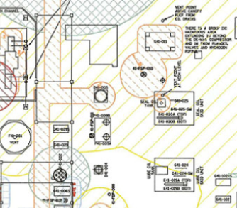
- Hazardous Area Mapping-We create clear plan and elevation drawings highlighting hazardous zones and critical equipment locations.
Why Choose Safety Solutions
- Industry Expertise – Extensive experience in oil & gas, chemical processing, manufacturing, and other hazardous industries
- Competent Professionals – Our consultants are competent in the applicable standards such as IEC 60079.
- Customised Solutions – Tailored assessments and hazardous area zoning training to suit your plant’s specific operations.
Deliverables You’ll Receive
- Classification Report – Full findings and methodology.
- Hazardous Area Maps – Detailed plant layouts showing zones.
- Risk Assessment – Analysis of hazards with recommended mitigation.
- Training Materials – Supporting documents for ongoing staff competency.
The Benefits
- Improved Safety – Reduced risk of explosion or fire.
- Regulatory Compliance – Meet the applicable standards to your region standards.
- Optimised Equipment Selection – Use the right equipment in the right zone.
- Cost Efficiency – Fewer incidents, less downtime, and lower compliance costs.
Hazardous Area Classification Training
Safety Solutions also offers a comprehensive 3-day training course that develops the competencies required to carry out Hazardous Area Classification for explosive atmospheres in line with AS/NZS 60079.10.1:2022 and AS/NZS 60079.10.2:2016. Participants will gain the skills to assess, document, and manage hazardous areas, ensuring compliance with relevant standards and enhancing site safety.
Designed for: Practising chemical/process, electrical/electronic, and mechanical engineers who need to perform or verify hazardous area classifications in their workplace.
Outcome: Confident, competent professionals who can deliver accurate hazardous area classifications that meet both regulatory and operational requirements.
Why Choose Safety Solutions?
CONTACT SAFETY SOLUTIONS today to discuss your hazardous area classification needs or to enrol your team in our Hazardous Area Classification training course. Our consultants will work with you to ensure your facility meets all compliance requirements while keeping safety front and centre.
Other useful links
- Training courses read more
- Process Safety Audits read more
- Safety Management Systems read more
- Process Safety Learning Management System read more
- Safety Solutions New Zealand
